Verbouwing Vossebulten

 de verbouwplannen

Een familieportret van Maarten Loonen
optimale schermgrootte 1024 x 768 pixels
ga naar vorige --- volgende

[de verbouwplannen]   [29 oktober tot 25 november]   [keuken plaatsen]   [nieuwe ruimte]  

Plattegrond, nieuwe situatie Plattegrond, oude situatie
Achteraanzicht, nieuwe situatie Achteraanzicht, oude situatie
Vooraanzicht, nieuwe situatie Vooraanzicht, oude situatie
We hebben lang gezocht naar ons optimale plan. We wilden niets van de achtertuin inleveren, omdat we die juist meer bij het woonhuis wilden betrekken. Bovendien mochten we van de gemeente aan de voorkant niet naar voor met de garage.
Wim Nieboer van Niebouw hielp ons met de plannen en de bouwaanvraag. Hij betrok ook Bart Koops erbij van Koops en Brakel voor de installatiewerkzaamheden. De installateur neemt veel van het werk op zich, wat niet meteen te zien is: een nieuwe riolering, een nieuwe dakbedekking op het platte dak, een nieuwe stoppenkast en natuurlijk de uitbreidingen van de centrale verwarming, riolering en verlichting.
Beide bedrijven ziten hier vlak om de hoek. We hebben goed geluisterd naar de ervaring van buurtgenoten en die zijn erg positief over deze bedrijven.
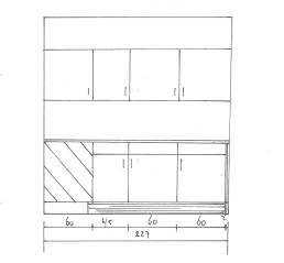
Plattegrond keuken Lange zijde, geen bovenkastjes Korte zijde, met bovenkastjes
De keuken is besteld bij Marc Lentelink van Cucine Italiane in Assen. We hebben geprobeerd de keuken als een meubelelement in huis te plaatsen. Niet alleen maar kastjes, maar ook een gekleurde achterwand. De afzuigkap wordt een rechte buis.




 VOLGENDE
 VORIGE
 INDEX

Navigation Centre
Naar de index van het fotoalbum: http://loonen.fmns.rug.nl/familie.
Naar de persoonlijke webpagina van Maarten Loonen: http://www.maartenloonen.nl.